王晓锋:桁架钢筋混凝土叠合板随想
目前我国装配式混凝土结构(简称“PC”)最常用的楼板形式就是桁架钢筋混凝土叠合板(简称“桁架钢筋板”)。与大多现代房屋建造技术与构配件一样,桁架钢筋板也是“舶来品”。
桁架钢筋板的钢筋桁架是起什么作用的,这是个很好的问题,谈到这个问题就要从国外的应用说起。我国目前的PC 应用技术受德国、日本两个国家影响很深,但两个国家的楼板厚度一般多为18cm 以上,25cm 厚的楼板也很常见。德国是桁架钢筋板生产与应用水平最高的国家,典型的桁架钢筋板如图1,多为四边不出筋或仅纵向伸出整体向上弯折的“胡子筋”,以方便实现全自动化生产。

图1 中的钢筋桁架主要有五大作用:之一是增加刚度,由于楼板厚度较大,钢筋桁架可以明显提高楼板刚度;之二是增加叠合面受剪,但这个并不明显,对于常规居住、办公荷载的叠合楼板,不配抗剪钢筋的叠合面仍可满足受剪计算要求;之三是施工“马镫”;之四是“吊钩”;最后就是双向板钢筋间接搭接辅助钢筋,德国的桁架钢筋板多为密拼双向板,采用间接搭接实现横向受力钢筋传力,钢筋桁架是实现钢筋间接搭接的前提(如图2,取自上海市地方标准《装配整体式叠合剪力墙结构技术规程》征求意见稿)。

我国的常规楼板厚度多为12cm左右,桁架钢筋板多为6cm 叠合底板(如图3) 7cm 后浇混凝土层。对比图1、图3,可逐一分析我国桁架钢筋板中钢筋桁架的五大作用:
●根据国标图集《桁架钢筋混凝土叠合板》15G366-1,叠合底板6cm、后浇层7cm 时钢筋桁架的高度仅有8cm,钢筋桁架在底板外露80mm 23mm(15mm 保护层 8mm 横向钢筋)-60mm=43mm。如此小的钢筋桁架高度,对底板刚度贡献很小,“增加刚度”的效果可以忽略。
●不配钢筋桁架,叠合面受剪计算大多可满足要求。
●由于钢筋桁架外露很少,很多时候不方便吊装,单独设置吊钩的情况也很多(如图3)。
●我国的桁架钢筋板多为整体式(拉开)接缝双向板,采用如图4的构造方式(取自国家标准《装配式混凝土建筑技术标准》送审稿),如图2 的作用也不存在。


综上,钢筋桁架起到的最主要作用是施工“马镫”,似乎代价有些高。
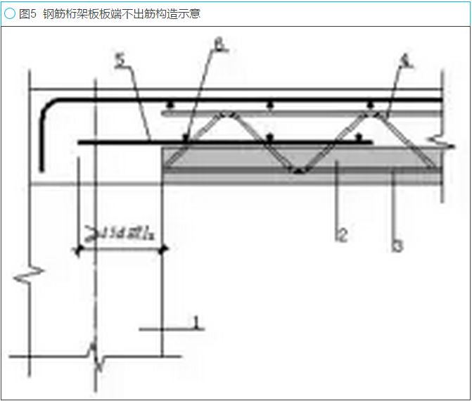
除了钢筋桁架设置有些“鸡肋”,我国的钢筋桁架板还存在生产效率偏低的问题。造成这个问题的主要原因是板侧出筋、设计标准化程度低及生产组织系统性差。采用图4 的构造时,钢筋桁架板普遍为4 个侧面出筋,造成边模复杂,难以实现全自动化。我国目前也有如图2 的板侧不出筋钢筋桁架板应用,但板端普遍出“胡子筋”,同样影响生产效率。国家标准《装配式混凝土建筑技术标准》送审稿提出了板端不出筋的间接搭接构造形式(如图5),但要求后浇层混凝土厚度不小于10cm,而实际情况是我国住宅应用16cm 楼板的可能性很小。板侧主筋与设计标准化程度低,直接造成了生产组织系统性差,图6 的模台布置浪费与人工混凝土浇筑都是这种情况的真实体现。


世界各国的PC 技术各有不同,我国的PC 技术更接近于日本。而日本的楼板远厚于我们,很多叠合底板实际上只起模板作用,在后浇混凝土层底部另配足够的受力钢筋。日本预制构件企业基本没有自动流水线,多采用固定台模生产。我国目前是采用了类似日本的技术路线并本地化,但使用的是德国似的自动流水线。
在德国,自动流水线同时生产桁架钢筋板和双皮墙(double wall,我国也称“叠合剪力墙”,如图7),所有板类构件均为不出筋或如图1 的弯折出筋方式,并通过信息化技术实现全自动高效生产;全负荷运转的全自动生产线,单条线年产桁架钢筋板或双皮墙(按单面计算)的面积可近100 万m2,而我国进口的生产线目前还很难达到这个产能。


我国目前6cm 预制、7cm 现浇的桁架钢筋板,是否一定设置钢筋桁架,是值得思考的问题。如果采用图8 的多点吊装方式,合理设置吊钩并保证楼板均匀受力,实际上不设钢筋桁架的混凝土平板,同样可以满足所有施工、受力要求。
如果设置钢筋桁架,最合理的方式还是推广应用双皮墙,将双皮墙与桁架钢筋板在一个自动化流水线上生产。同时要推广不出筋或端部整体弯折的桁架钢筋板,相信可以通过专项研究提出合理设计计算方法与构造措施,突破后浇层10cm 的限制要求。
对桁架钢筋板的认识,会决定自动流水线的选择。我个人的观点是,如果不做双皮墙,仅生产四面出筋的桁架钢筋板,没有必要一定上流水线。我国目前很多构件生产企业盲目投入先进流水线,互相模仿,最后总会明白其实这么做主要为了迎接参观。
目前PC 的造价普遍高于现浇,预制构件价格高是主要原因。不合理产品与构造,生产线投入过大,都是造成预制构件价格高的原因。个人坚持认为,按现有模式生产桁架钢筋板,无论应用到住宅还是公共建筑,造价比现浇便宜在相当一段时间是不可能的。
什么样的预制产品与生产线更适合中国目前PC 发展的实际情况,从不同角度出发会有不同的结论。桁架钢筋板需要改进,相信大家都不会反对的。
文章摘自《新营造》
